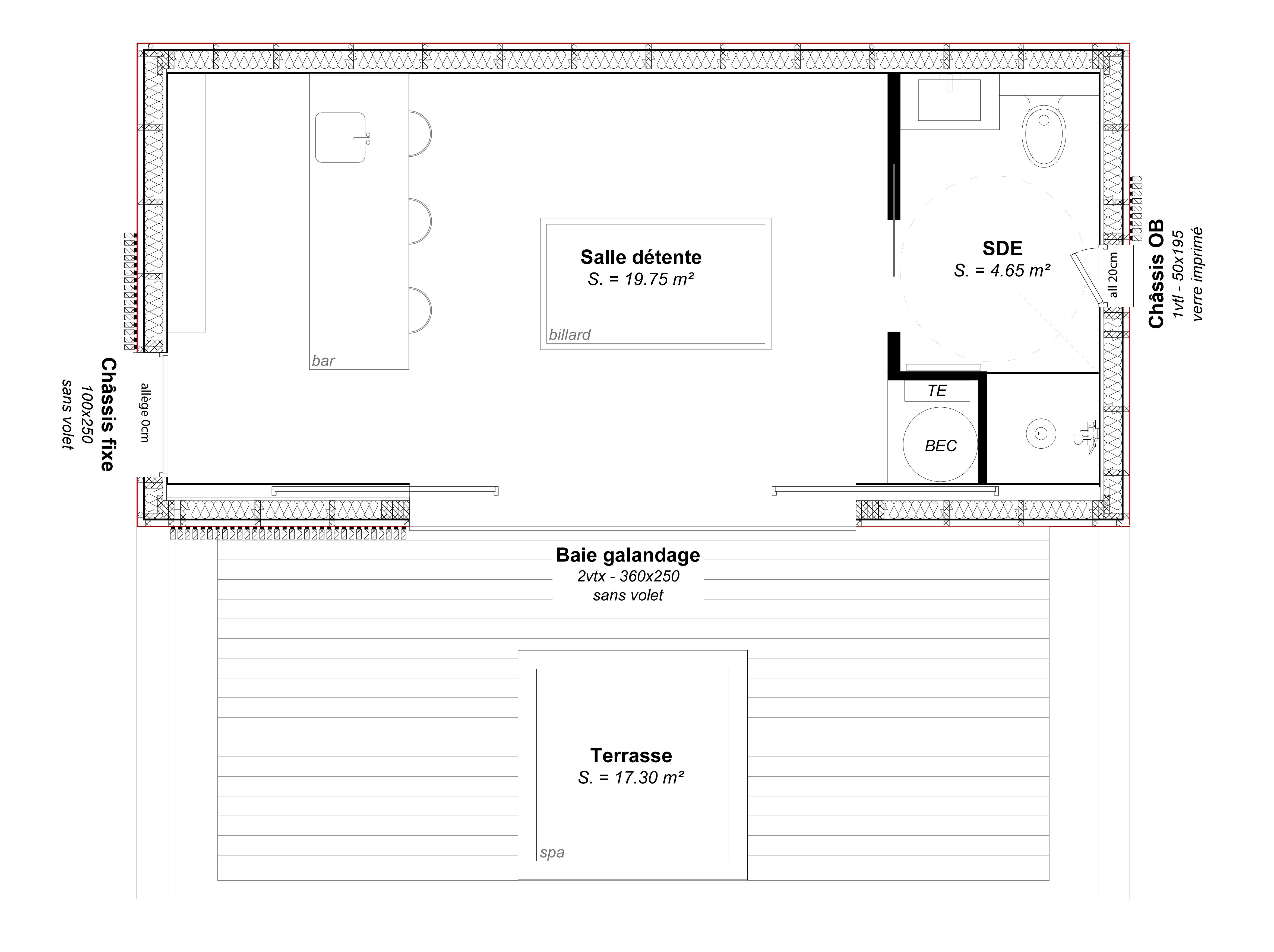
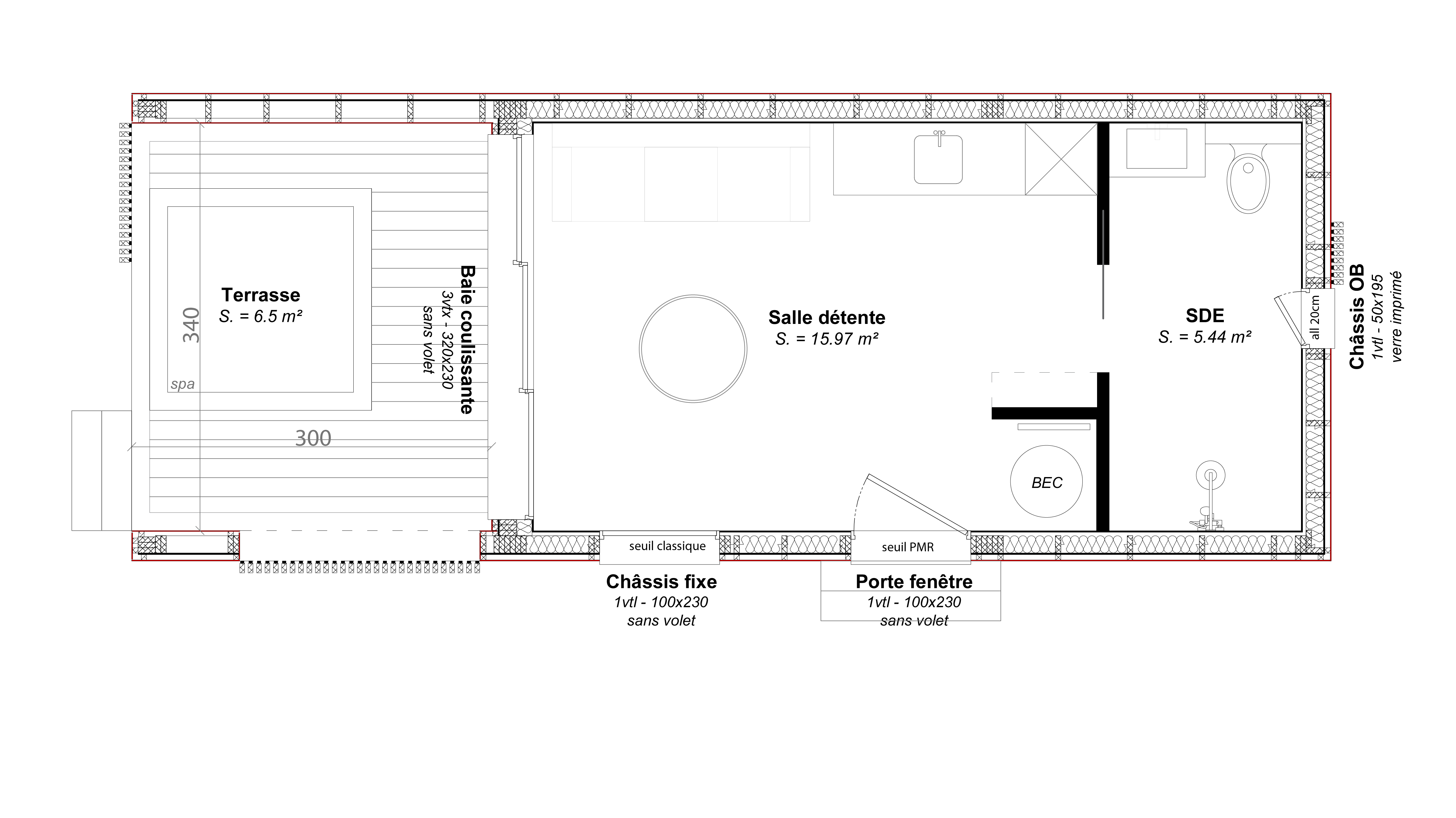
Envie d’un espace supplémentaire pour partager des moments exceptionnels avec vos proches, pour échapper au stress du quotidien, ou encore de créer un lieu de créativité ?
Nous nous adaptons à vos besoins pour imaginer l’espace dont vous rêvez tant !


* Agencement sur mesure, adapté à votre projet et votre budget. Les tarifs diffèrent en fonction des matériaux sélectionnés et de la surface de chaque module.

* Agencement sur mesure, adapté à votre projet et votre budget. Les tarifs diffèrent en fonction des matériaux sélectionnés et de la surface de chaque module.